Описание
ID 6729
Предлагается к продаже новый эксклюзивный дом площадью 550 кв.м. на лесном участке 21соток в загородной клубной резиденции "Залесье".
Дом из клееного бруса (брус увеличенного размера).
Уравновешенная лаконичная архитектура, не отвлекающая от созерцания природы через панорамные окна. Наполненные светом и воздухом спальни с отдельными комфортными гардеробными. Натуральные тона и природные материалы, используемые для отделки, начиная с просторной прихожей со своим гардеробом и заканчивая игровыми зонами. Множество продуманных вспомогательных и хозяйственных зон. Большая летняя терраса.
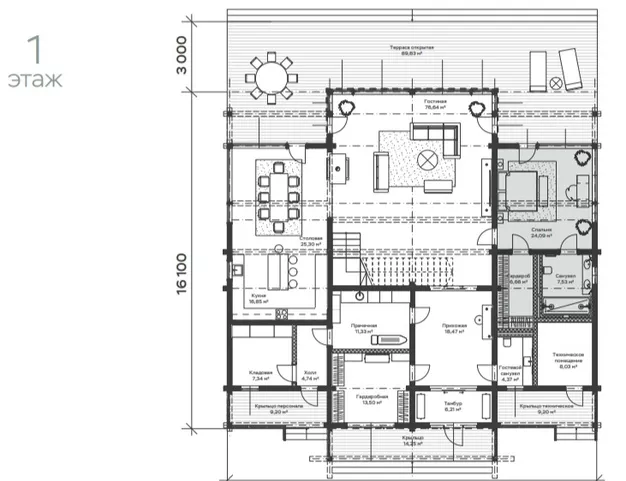
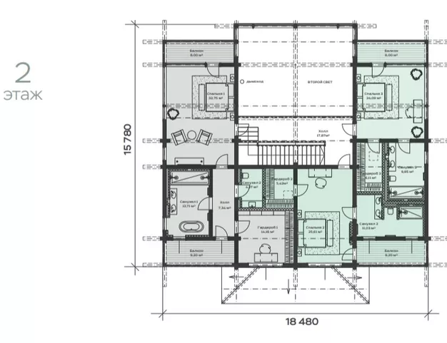
Планировка
1 этаж
прихожая, гардеробная, гостевой с/у, гостиная, кухн-столовая, гостевая спальня со своей гардеробной и c/у, прачечная, кладовая, тех.помещение.
2 этаж
мастер-блок с зоной отдыха, своей гардеробной и 2 с/у, 2 спальни со своими гардеробными и с/у.
Загородная резиденция "Залесье" - это камерный проект, расположенный в уникальном месте среди вековых реликтовых лесов Клинского района Московской области. Проект для тех, кто любит комфорт и ценит уединенность.
• Охраняемая территория 24/7 без машин и без заборов
• Консьерж-сервис премиум-класса
• Ландшафтный дизайн в стиле английского сада
• Клубный дом для всех жильцов поселка
• Детская площадка и зона отдыха
• Баня на дровах.
 
                         
                                                 
                                                 
                                                 
                                                 
                                                 
                                                 
                                                 
                                                 
                                                 
                                                 
                                                 
                                                 
                                                 
                                                 
                                                 
                                                 
                                                 
                                                 
                                                 
                                                 
                             
                                     
                                     
                                     
                                     
                                     
                                     
                                     
                                     
                                     
                                     
                                     
                                     
                                     
                                     
                                     
                                     
                                     
                                     
                                     
                                     
                                     
                                     
                                    